Main Level

2nd Floor

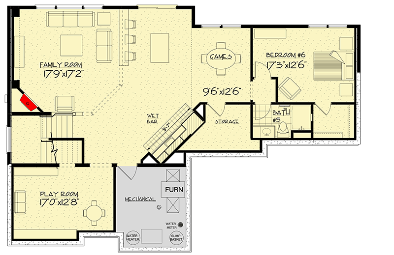
Optional Lower Level

Total Heated Area:3,759 sq. ft.
1st Floor:1,683 sq. ft.
2nd Floor:2,076 sq. ft.
Optional Lower Level:1,488 sq. ft.
Basement Unfinished:157 sq. ft.
Bedrooms:5 or 6
Full Bathrooms:4 or 5
Half Bathrooms:1
Standard Foundations:Walkout
Standard Type(s):2x6
Width:61' 6"
Depth:49' 0"
Max Ridge Height:35' 0"
Type:Attached
Area:769 sq. ft.
Count:3 cars
Entry Location:Front
Floor / Height:Lower Level / 8' 0"First Floor / 9' 0"Second Floor / 8' 0"
Framing Type:Truss
If you need more information, pleasefeel free to contact us.
Contact: Mr. Vino Zhang
Cell: +86-135 6063 2003 (Whatsapp and Wechat No.)
Email: vino@jncnhomes.com