Main Level

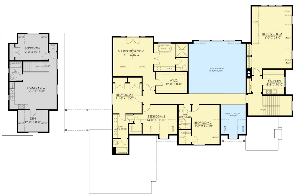
2nd Floor

Total Heated Area:5,344 sq. ft.
1st Floor:2,951 sq. ft.
2nd Floor:2,393 sq. ft.
Workshop:288 sq. ft.
Apartment:716 sq. ft.
Bedrooms:4 or 5
Full Bathrooms:3 or 4
Half Bathrooms:1
Standard Foundations:Crawl
Optional Foundations:Basement
Standard Type(s):2x6
Width:117' 0"
Depth:77' 0"
Max Ridge Height:32' 0"
Type:Detached, Attached
Area:1417 sq. ft.
Count:2, 3, & 4 cars
Entry Location:Side, Front
If you need more information, pleasefeel free to contact us.
Contact: Mr. Vino Zhang
Cell: +86-135 6063 2003 (Whatsapp and Wechat No.)
Email: vino@jncnhomes.com