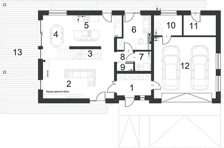
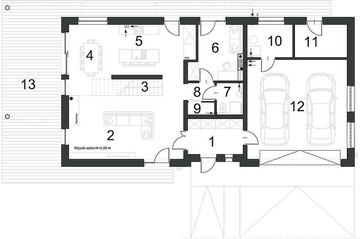
Ground floor

1. Wiatrołap7,24 m2
2. Pokój dzienny31,20 m2
3. Schody3,06 m2
4. Jadalnia7,95 m2
5. Kuchnia15,26 m2
6. Pokój9,72 m2
7. Łazienka3,09 m2
8. Korytarz1,82 m2
9. Pom. gospodarcze1,23 m2
10. Pom. gospodarcze5,62 m2
11. Pom. gospodarcze6,36 m2
12. Garaż dwustanowiskowy36,59 m2
13. Taras(63,04 m2)
Razem129,14 m2
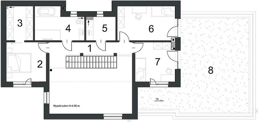
1st floor

1. Korytarz9,35 m2
2. Pokój11,22 m2
3. Garderoba6,55 m2
4. Łazienka10,33 m2
5. Pom. gospodarcze4,84 m2
6. Pokój14,02 m2
7. Pokój11,02 m2
8. Taras(52,52 m2)
Razem67,33 m2
If you need more information, pleasefeel free to contact us.
Contact: Mr. Vino Zhang
Cell: +86-135 6063 2003 (Whatsapp and Wechat No.)
Email: vino@jncnhomes.com