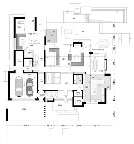
Ground floor

1. Wiatrołap6,74 m2
2. Garderoba6,61 m2
3. Korytarz2,85 m2
4. Korytarz6,45 m2
5. Hall32,52 m2
6. Wc4,20 m2
7. Pom. gospodarcze2,56 m2
8. Spiżarnia4,40 m2
9. Kuchnia38,30 m2
10. Jadalnia21,54 m2
11. Pokój dzienny73,05 m2
12. Korytarz12,30 m2
13. Pokój46,61 m2
14. Winiarnia3,30 m2
15. Pom. gospodarcze2,28 m2
16. Instalacje6,52 m2
17. Pom. gospodarcze9,99 m2
18. Garaż dwustanowiskowy41,34 m2
19. Wiata garażowa dwustanowiskowa(45,74 m2)
Razem321,56 m2
1st floor

1. Hall + antresola30 m2
2. Pustka nad salonem
3. Pokój31,79 m2
4. Garderoba2,77 m2
5. Łazienka6,13 m2
6. Pokój30,32 m2
7. Garderoba(2,77 m2)
8. Łazienka7,20 m2
9. Pustka nad wiatrołapem
10. Pom. gospodarcze21,57 m2
11. Łazienka4,87 m2
12. Kuchnia + pokój10,93 m2
13. Pokój12,32 m2
14. Pokój13,28 m2
15. Garderoba14,58 m2
16. Garderoba7,90 m2
17. Łazienka21,06 m2
18. Pokój34,77 m2
19. Pokój11,71 m2
Razem261,20 m2
If you need more information, pleasefeel free to contact us.
Contact: Mr. Vino Zhang
Cell: +86-135 6063 2003 (Whatsapp and Wechat No.)
Email: vino@jncnhomes.com