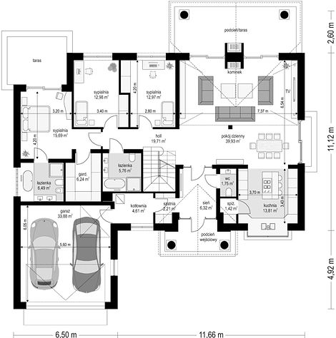
Ground floor

1. Wiatrołap6,32 m2
2. Garderoba2,21 m2
3. Kotłownia4,61 m2
4. Garaż dwustanowiskowy33,88 m2
5. Pokój dzienny39,93 m2
6. Kuchnia13,81 m2
7. Spiżarnia1,42 m2
8. Wc1,75 m2
9. Hall19,71 m2
10. Pokój12,97 m2
11. Łazienka5,76 m2
12. Pokój12,98 m2
13. Garderoba6,24 m2
14. Pokój15,69 m2
15. Łazienka6,49 m2
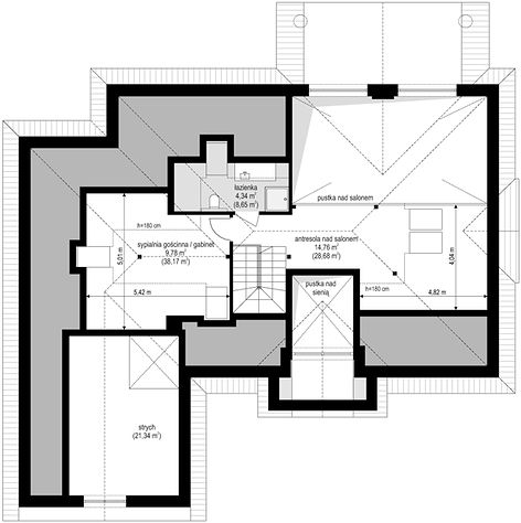
Attic

1. Antresola14,76 m2 (28,68 m2)
2. Łazienka4,34 m2 (8,65 m2)
3. Pokój9,78 m2 (38,17 m2)
4. Strych21,34 m2
Razem50,22 m2 (96,84 m2)
If you need more information, pleasefeel free to contact us.
Contact: Mr. Vino Zhang
Cell: +86-135 6063 2003 (Whatsapp and Wechat No.)
Email: vino@jncnhomes.com