Ground floor

1. Wiatrołap4,05 m2
2. Pokój dzienny + jadalnia35,08 m2
3. Kuchnia12 m2
4. Pom. gospodarcze2,67 m2
5. Spiżarnia1,17 m2
6. Hall8,23 m2
7. Wc2,28 m2
8. Pokój10,80 m2
9. Pokój10,80 m2
10. Kotłownia7 m2
11. Garaż jednostanowiskowy20,27 m2
12. Pom. gospodarcze3,16 m2
13. Korytarz5,51 m2
14. Pokój + garderoba13,10 m2
15. Łazienka6,12 m2
16. Pokój6,72 m2
Razem148,96 m2
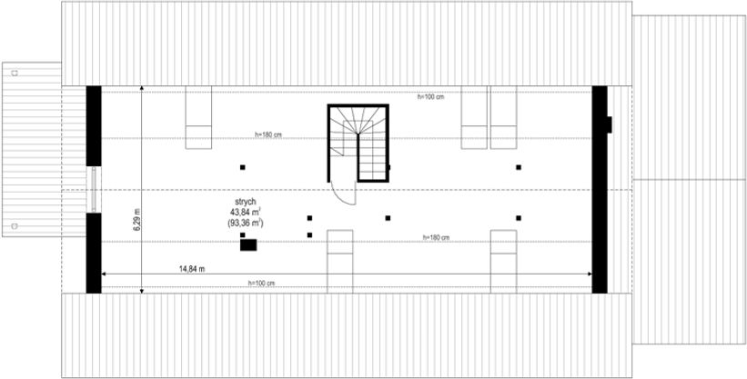
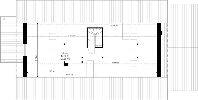
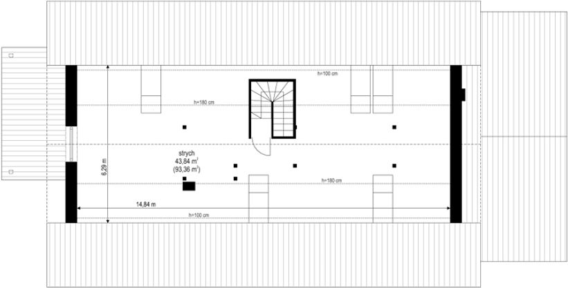
Attic

1. Strych43,84 m2 (93,36 m2)
Razem43,84 m2 (93,36 m2)
If you need more information, pleasefeel free to contact us.
Contact: Mr. Vino Zhang
Cell: +86-135 6063 2003 (Whatsapp and Wechat No.)
Email: vino@jncnhomes.com