Ground floor

1. Wiatrołap3,58 m2
2. Hall6,49 m2
3. Kuchnia11,76 m2
4. Pokój dzienny26,19 m2
5. Pokój12,31 m2
6. Łazienka5,24 m2
7. Pom. gospodarcze4,85 m2
8. Kotłownia6,58 m2
9. Garaż jednostanowiskowy19,49 m2
Razem96,49 m2
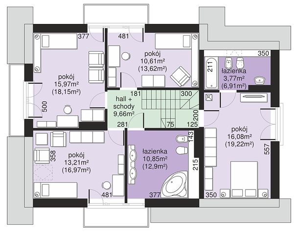
Attic

10. Hall + schody9,66 m2
11. Pokój16,08 m2 (19,22 m2)
12. Łazienka3,77 m2 (6,91 m2)
13. Łazienka10,85 m2 (12,90 m2)
14. Pokój13,21 m2 (16,97 m2)
15. Pokój15,97 m2 (18,15 m2)
16. Pokój10,61 m2 (13,62 m2)
Razem80,15 m2 (97,43 m2)
If you need more information, pleasefeel free to contact us.
Contact: Mr. Vino Zhang
Cell: +86-135 6063 2003 (Whatsapp and Wechat No.)
Email: vino@jncnhomes.com