Ground floor

1. Wiatrołap8,82 m2
2. Hall9,38 m2
3. Pokój dzienny + jadalnia38,14 m2
4. Spiżarnia1,34 m2
5. Kuchnia12,79 m2
6. Pokój13,19 m2
7. Pokój15,55 m2
8. Garderoba4,35 m2
9. Łazienka4,61 m2
10. Łazienka5,60 m2
11. Pokój11,60 m2
12. Pokój8 m2
13. Korytarz10,97 m2
14. Wc2,13 m2
15. Kotłownia5,60 m2
16. Garaż dwustanowiskowy37,01 m2
Razem189,08 m2
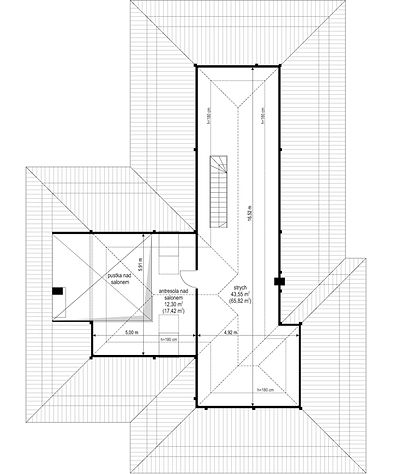
Attic

1. Strych43,55 m2 (65,82 m2)
2. Antresola12,30 m2 (17,42 m2)
Razem55,85 m2 (83,24 m2)
If you need more information, pleasefeel free to contact us.
Contact: Mr. Vino Zhang
Cell: +86-135 6063 2003 (Whatsapp and Wechat No.)
Email: vino@jncnhomes.com