Ground floor

1. Wiatrołap11,40 m2
2. Hall17,20 m2
3. Kuchnia12,10 m2
4. Jadalnia13,40 m2
5. Pokój dzienny28,50 m2
6. Łazienka4,30 m2
7. Pokój14,70 m2
8. Garderoba5,70 m2
9. Łazienka8,20 m2
10. Kotłownia8 m2
11. Pokój11,60 m2
12. Spiżarnia4,10 m2
13. Garaż dwustanowiskowy36 m2
Razem175,20 m2
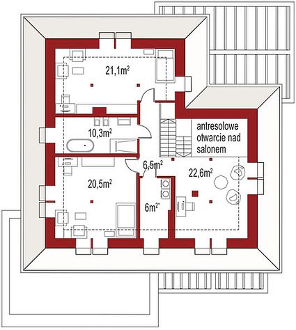
Attic

1. Hall6,50 m2
2. Antresola22,60 m2
3. Pokój21,10 m2
4. Łazienka10,30 m2
5. Pokój20,50 m2
6. Pom. gospodarcze6 m2
Razem87 m2
If you need more information, pleasefeel free to contact us.
Contact: Mr. Vino Zhang
Cell: +86-135 6063 2003 (Whatsapp and Wechat No.)
Email: vino@jncnhomes.com