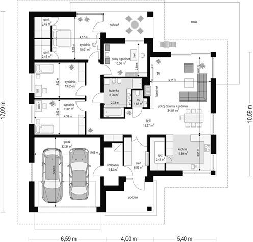
Ground floor

1. Wiatrołap6,53 m2
2. Hall15,37 m2
3. Spiżarnia3,44 m2
4. Kuchnia11,59 m2
5. Pokój dzienny + jadalnia34,54 m2
6. Wc1,65 m2
7. Łazienka8,26 m2
8. Pokój10,50 m2
9. Pokój15,01 m2
10. Garderoba2,46 m2
11. Garderoba2,46 m2
12. Pokój13,05 m2
13. Pokój13,05 m2
14. Kotłownia5,44 m2
15. Garaż dwustanowiskowy33,34 m2
Razem
Attic

1. Strych37,59 m2 (206,51 m2)
Razem37,59 m2 (206,51 m2)
If you need more information, pleasefeel free to contact us.
Contact: Mr. Vino Zhang
Cell: +86-135 6063 2003 (Whatsapp and Wechat No.)
Email: vino@jncnhomes.com