Ground floor

1. Wiatrołap4,25 m2
2. Korytarz5,57 m2
3. Garderoba6,76 m2
4. Łazienka4,77 m2
5. Schody5,70 m2
6. Spiżarnia4,78 m2
7. Pokój dzienny + kuchnia43,81 m2
8. Jadalnia22,43 m2
9. Pokój12,16 m2
10. Garaż dwustanowiskowy + kotłownia41,82 m2
11. Kotłownia3,08 m2
Razem155,13 m2
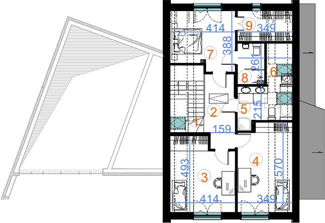
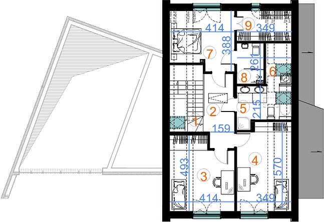
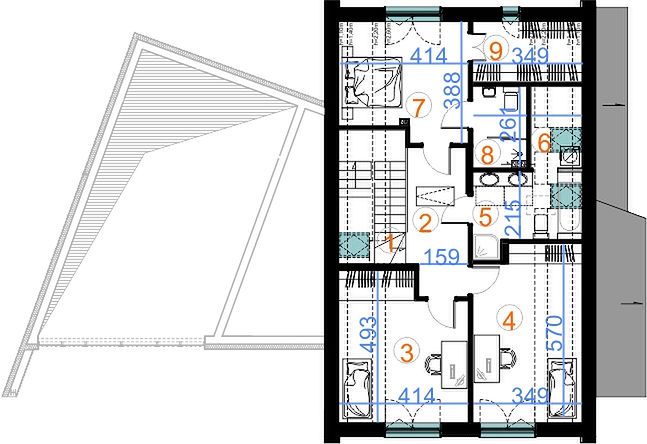
Attic

1. Schody1,28 m2
2. Korytarz8,93 m2
3. Pokój15,15 m2
4. Pokój15,14 m2
5. Łazienka6,58 m2
6. Pom. gospodarcze2,42 m2
7. Pokój12,32 m2
8. Łazienka4,52 m2
9. Garderoba5,40 m2
Razem71,74 m2
If you need more information, pleasefeel free to contact us.
Contact: Mr. Vino Zhang
Cell: +86-135 6063 2003 (Whatsapp and Wechat No.)
Email: vino@jncnhomes.com