Basement

1. Wiatrołap3,80 m2
2. Hall + korytarz12,20 m2
3. Kotłownia11,95 m2
4. Pom. gospodarcze14,40 m2
5. Garaż dwustanowiskowy35,80 m2
Razem78,15 m2
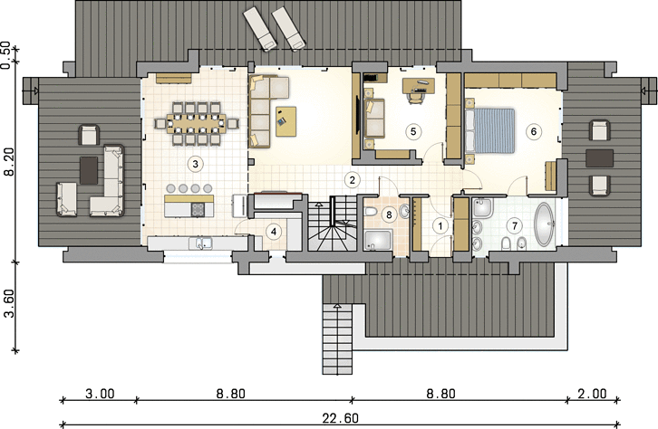
Ground floor

1. Wiatrołap4,95 m2
2. Hall + korytarz11,85 m2
3. Pokój dzienny + jadalnia + kuchnia51,70 m2
4. Spiżarnia3 m2
5. Pokój13,60 m2
6. Pokój18,55 m2
7. Łazienka7,45 m2
8. Łazienka4,05 m2
Razem115,15 m2
Attic

1. Hall + korytarz18,90 m2
2. Strych5,35 m2
3. Strych19,95 m2
4. Strych5,65 m2
Razem49,85 m2
If you need more information, pleasefeel free to contact us.
Contact: Mr. Vino Zhang
Cell: +86-135 6063 2003 (Whatsapp and Wechat No.)
Email: vino@jncnhomes.com