Modern houses
LK&1136
PLAN DESCRIPTION
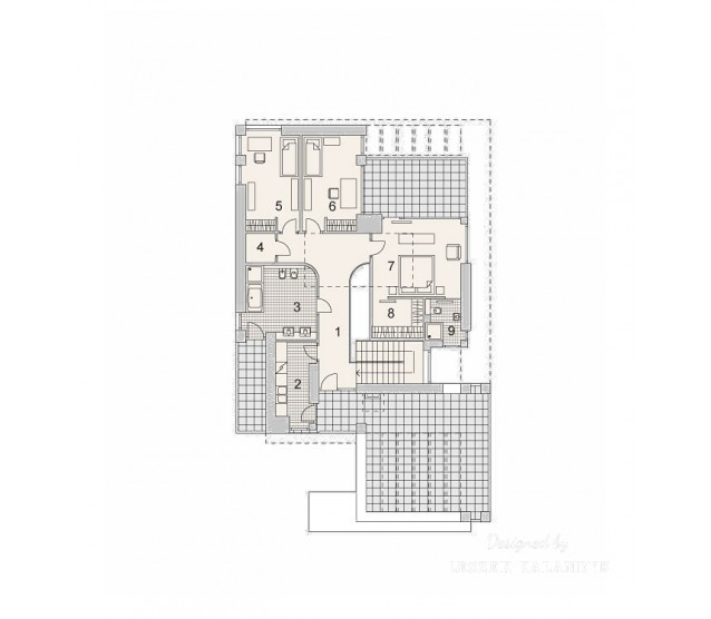
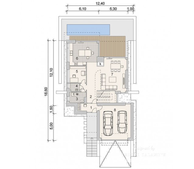
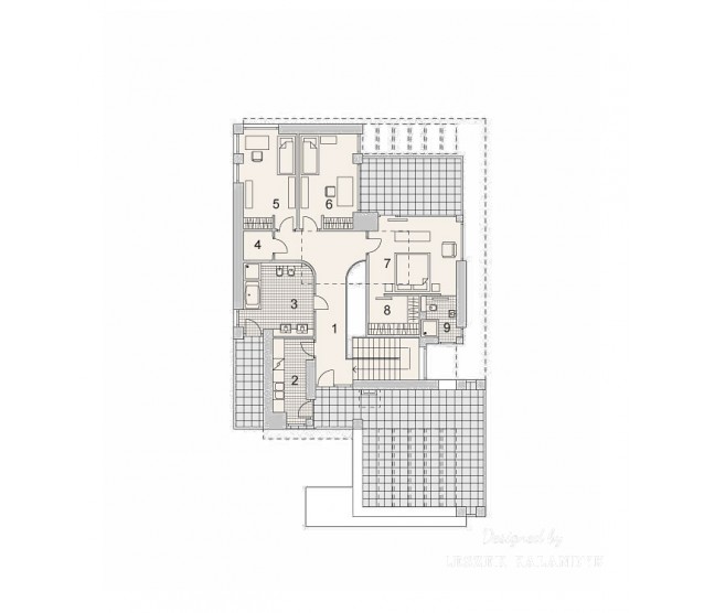
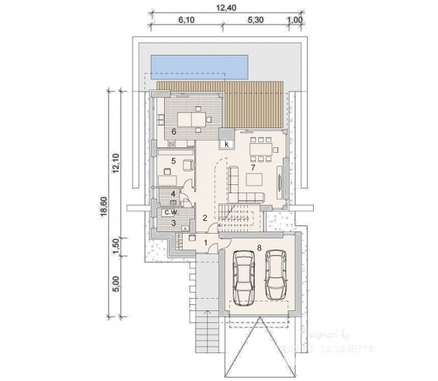
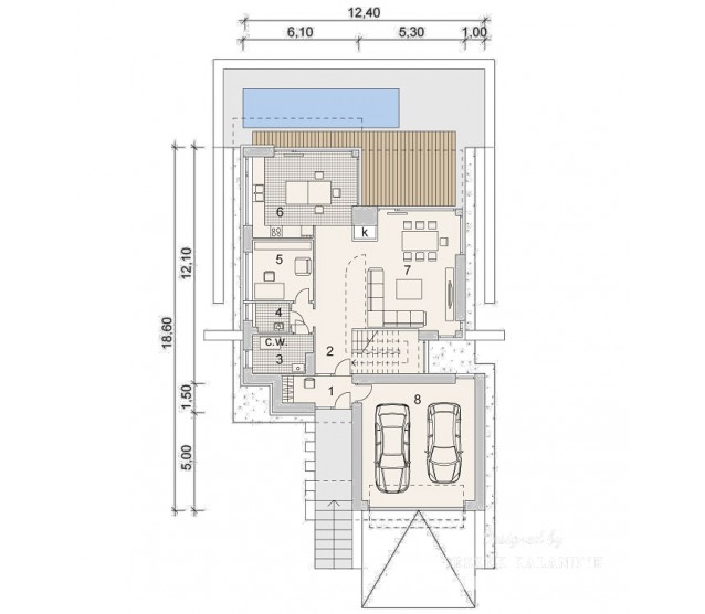
FLOOR PLANS

Ground floor

Floor


FULL SPECS & FEATURES
1. Usable area181,96 m²
2. Area garage34,8 m²
3. Total surface308 m²
4. Building area205 m²
5. Net volume668 m³
6. Gross volume1536 m³
7. Energy for heating14,53 kWh/m²*year
8. Building height11,34 m
9. Roof angle30 °
10. Roof area132 m²
11. Сeiling height2,65 m
12. Minimum plot size32,99 x 19,9 m


If you need more information, pleasefeel free to contact us.
Contact: Mr. Vino Zhang
Cell: +86-135 6063 2003 (Whatsapp and Wechat No.)
Email: vino@jncnhomes.com