Modern houses
LK&1554
PLAN DESCRIPTION
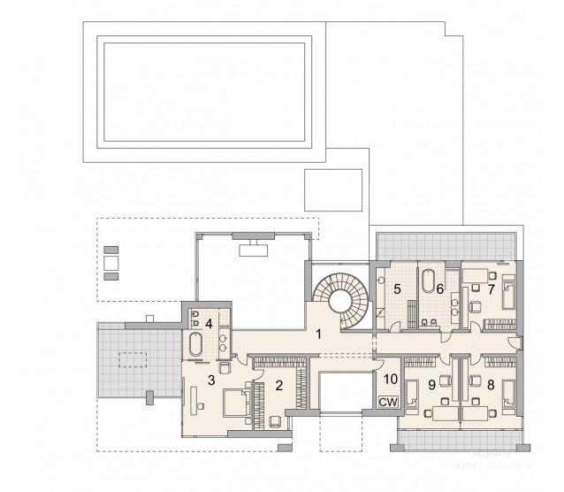
FLOOR PLANS

Ground floor

Floor

Floor 2


FULL SPECS & FEATURES
1. Usable area637,24 m²
2. Total surface824,67 m²
3. Building area610,20 m²
4. Net volume1902,48 m³
5. Gross volume2992,96 m³
6. Building height11,00 m
7. Roof angle1,5 °
8. Roof area642,26 m²
9. Сeiling height2,50 m; 3,00m, 3,70 m
10. Minimum plot size36,60 m x 37,90 m


If you need more information, pleasefeel free to contact us.
Contact: Mr. Vino Zhang
Cell: +86-135 6063 2003 (Whatsapp and Wechat No.)
Email: vino@jncnhomes.com