Traditional houses
LK&124
PLAN DESCRIPTION
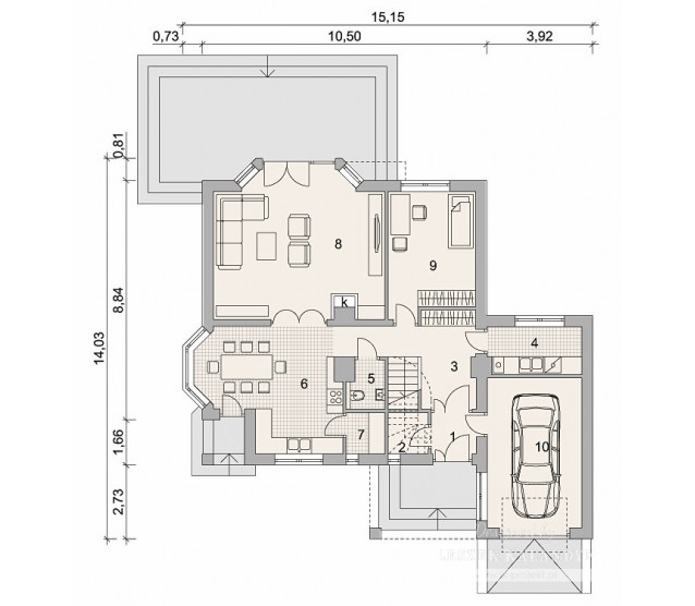
FLOOR PLANS

Ground floor

Attic


FULL SPECS & FEATURES
1. Usable area170,49 m²
2. Area garage19,6 m²
3. Total surface238,19 m²
4. Building area210,04 m²
5. Net volume451,17 m³
6. Gross volume856,5 m³
7. Energy for heating18,14 kWh/m²*year
8. Building height9,2 m
9. Attic wall height0,85 m
10. Roof angle45 °
11. Roof area269,82 m²
12. Сeiling height2,65 m
13. Minimum plot size22,15 x 22,33 m


If you need more information, pleasefeel free to contact us.
Contact: Mr. Vino Zhang
Cell: +86-135 6063 2003 (Whatsapp and Wechat No.)
Email: vino@jncnhomes.com