Traditional houses
LK&172
PLAN DESCRIPTION
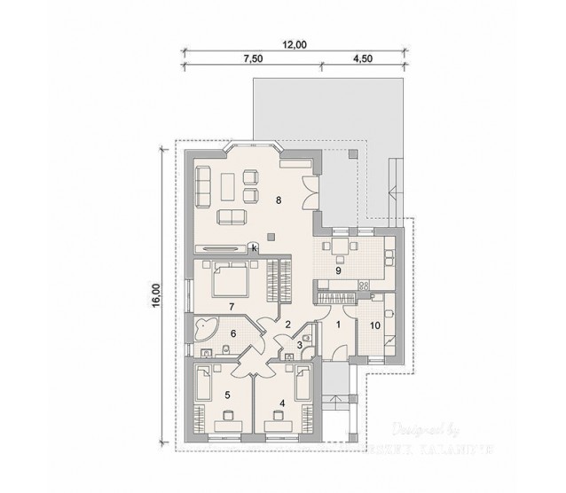
FLOOR PLANS

Ground floor


FULL SPECS & FEATURES
1. Usable area121,59 m²
2. Total surface155,18 m²
3. Building area211 m²
4. Net volume333,52 m³
5. Energy for heating16,29 kWh/m²*year
6. Building height7,37 m
7. Attic wall height0,45 m
8. Roof angle35 °
9. Roof area260 m²
10. Сeiling height2,66 m
11. Minimum plot size19 x 25,4 m


If you need more information, pleasefeel free to contact us.
Contact: Mr. Vino Zhang
Cell: +86-135 6063 2003 (Whatsapp and Wechat No.)
Email: vino@jncnhomes.com