Traditional houses
LK&471
PLAN DESCRIPTION
FLOOR PLANS

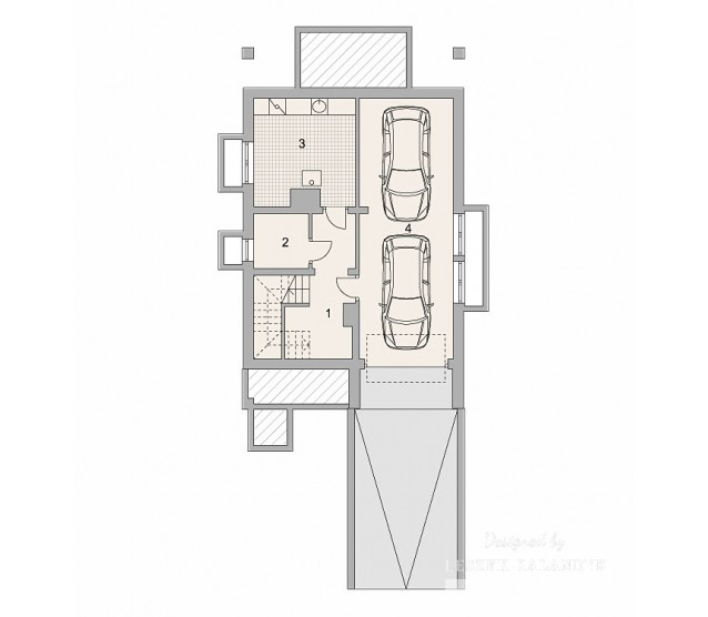
Basement

Ground floor

Attic


FULL SPECS & FEATURES
1. Usable area105,91 m²
2. Basement area26,84 m²
3. Area garage31,6 m²
4. Total surface183 m²
5. Building area104 m²
6. Net volume481 m³
7. Gross volume860 m³
8. Energy for heating14,75 kWh/m²*year
9. Building height8,86 m
10. Attic wall height0,9 m
11. Roof angle45 °
12. Roof area183 m²
13. Сeiling height2,63 m
14. Minimum plot size16 x 23,97 m


If you need more information, pleasefeel free to contact us.
Contact: Mr. Vino Zhang
Cell: +86-135 6063 2003 (Whatsapp and Wechat No.)
Email: vino@jncnhomes.com