Traditional houses
LK&720
PLAN DESCRIPTION
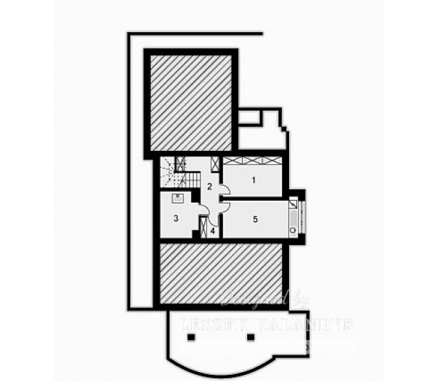
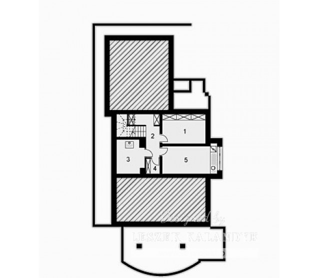
FLOOR PLANS

Basement

Ground floor

Attic


FULL SPECS & FEATURES
1. Usable area195,56 m²
2. Basement area48,54 m²
3. Area garage25,8 m²
4. Total surface376,95 m²
5. Building area196,4 m²
6. Net volume917,81 m³
7. Gross volume1418,8 m³
8. Energy for heating15,22 kWh/m²*year
9. Building height9,38 m
10. Attic wall height1,07 m
11. Roof angle40 °
12. Roof area300 m²
13. Сeiling height2,43/2,70/2,73 m
14. Minimum plot size19,99 x 28,93 m


If you need more information, pleasefeel free to contact us.
Contact: Mr. Vino Zhang
Cell: +86-135 6063 2003 (Whatsapp and Wechat No.)
Email: vino@jncnhomes.com