Traditional houses
LK&948
PLAN DESCRIPTION
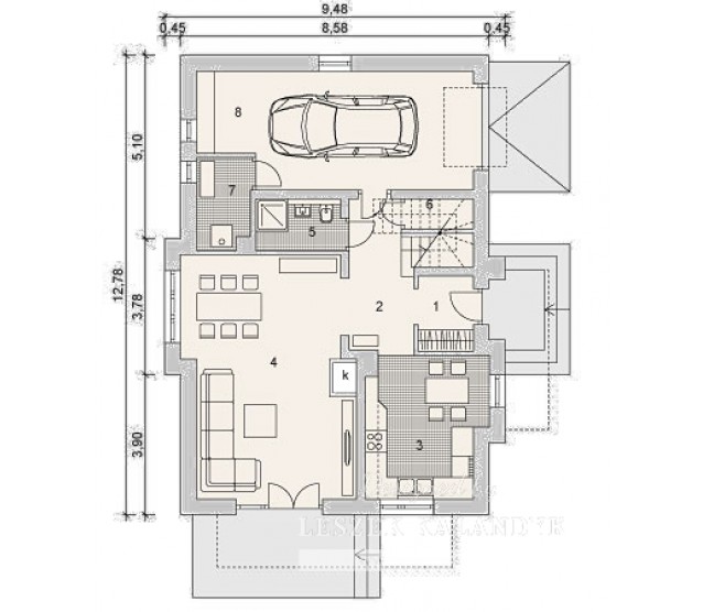
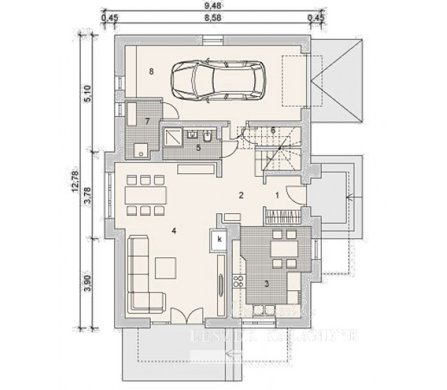
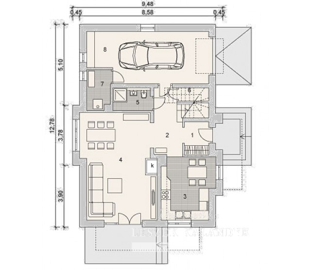
FLOOR PLANS

Ground floor

Attic


FULL SPECS & FEATURES
1. Usable area125,5 m²
2. Area garage23,73 m²
3. Additional area3,73 m²
4. Total surface246 m²
5. Building area110 m²
6. Net volume399,6 m³
7. Gross volume795,95 m³
8. Building height8,53 m
9. Attic wall height1,05 m
10. Roof angle42 °
11. Roof area192,5 m²
12. Сeiling height2,65/2,60 m
13. Minimum plot size17,48 x 20,78 m


If you need more information, pleasefeel free to contact us.
Contact: Mr. Vino Zhang
Cell: +86-135 6063 2003 (Whatsapp and Wechat No.)
Email: vino@jncnhomes.com