Traditional houses
LK&1290
PLAN DESCRIPTION
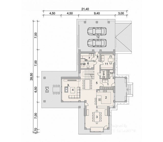
FLOOR PLANS

Ground floor

Attic


FULL SPECS & FEATURES
1. Usable area274,81 m²
2. Additional area72,32 m²
3. Total surface543 m²
4. Building area305 m²
5. Net volume912,85 m³
6. Gross volume1210,37 m³
7. Building height9,2 m
8. Roof angle43 °
9. Roof area658,7 m²
10. Сeiling height2,70; 3,00 m
11. Minimum plot size37 x 27,4 m


If you need more information, pleasefeel free to contact us.
Contact: Mr. Vino Zhang
Cell: +86-135 6063 2003 (Whatsapp and Wechat No.)
Email: vino@jncnhomes.com