Traditional houses
LK&1574
PLAN DESCRIPTION
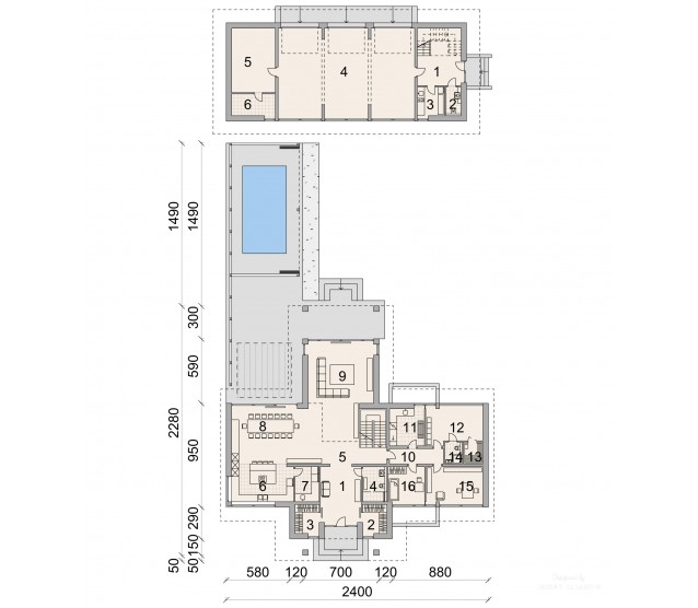
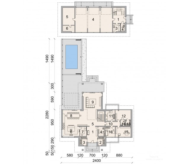
FLOOR PLANS

Basement

Ground floor

Floor

 


FULL SPECS & FEATURES

If you need more information, pleasefeel free to contact us.
Contact: Mr. Vino Zhang
Cell: +86-135 6063 2003 (Whatsapp and Wechat No.)
Email: vino@jncnhomes.com