Barnhouses
LK&1483
PLAN DESCRIPTION
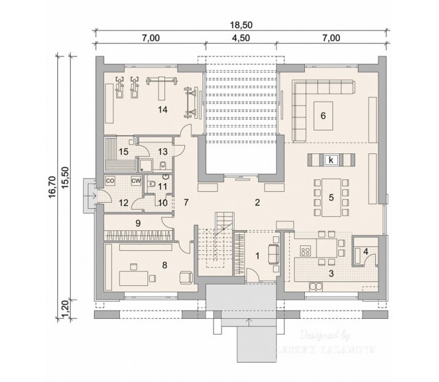
FLOOR PLANS

Ground floor

Attic


FULL SPECS & FEATURES
1. Usable area326,09 m²
2. Total surface496,1 m²
3. Building area254 m²
4. Building height8,8 m
5. Attic wall height1,7 m
6. Roof angle42 °
7. Сeiling height2,70 m; 3,00 m
8. Minimum plot size23,7 x 25,5 m


If you need more information, pleasefeel free to contact us.
Contact: Mr. Vino Zhang
Cell: +86-135 6063 2003 (Whatsapp and Wechat No.)
Email: vino@jncnhomes.com