Barnhouses
LK&1553
PLAN DESCRIPTION
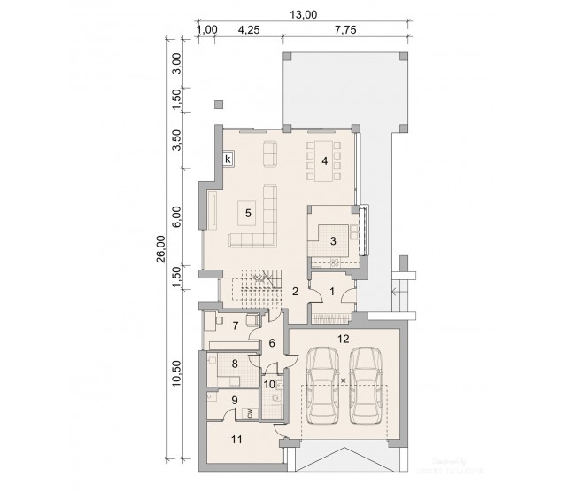
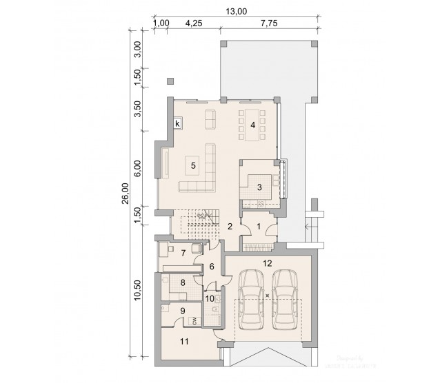
FLOOR PLANS

Ground floor

Attic


FULL SPECS & FEATURES
1. Usable area230,30 m²
2. Area garage47,95 m²
3. Total surface248,02 m²
4. Building area231,00 m²
5. Net volume833,00 m³
6. Gross volume1475,00 m³
7. Building height9,16 m
8. Attic wall height1,00 m
9. Roof angle43 °
10. Roof area222,37+112,61 m²
11. Сeiling height2,70 m
12. Minimum plot size20,00x32,00 m


If you need more information, pleasefeel free to contact us.
Contact: Mr. Vino Zhang
Cell: +86-135 6063 2003 (Whatsapp and Wechat No.)
Email: vino@jncnhomes.com