Barnhouses
LK&1608
PLAN DESCRIPTION
FLOOR PLANS

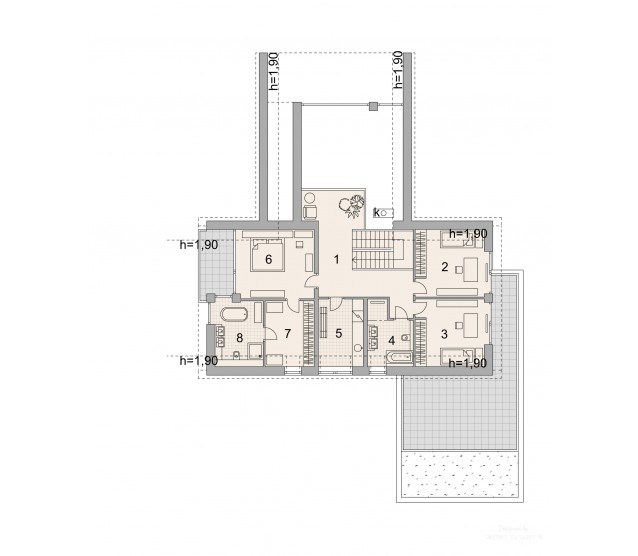
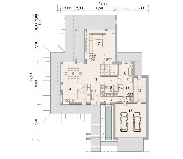
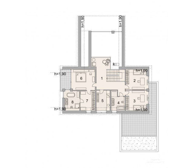
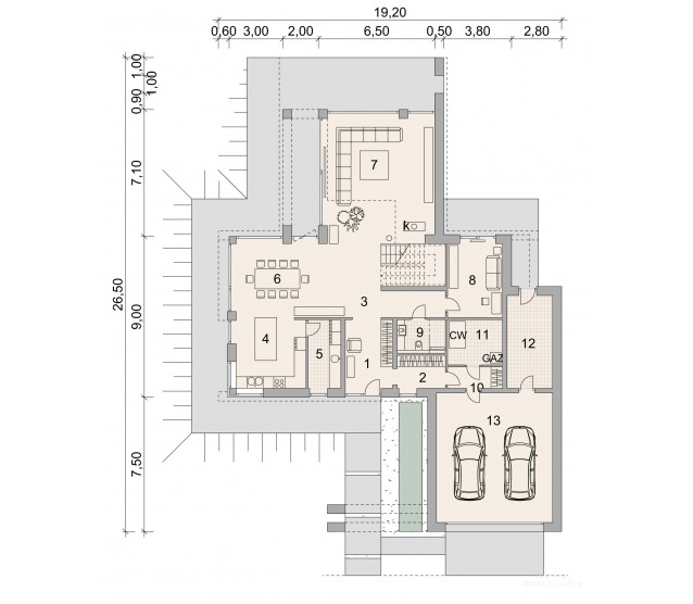
Ground floor

Attic


FULL SPECS & FEATURES
1. Usable area263,33 m²
2. Area garage47,13 m²
3. Total surface503,67 m²
4. Building area269,79 m²
5. Net volume
6. Gross volume
7. Building heightm
8. Roof angle42 °
9. Roof area
10. Сeiling heightm
11. Minimum plot size33,50 x 25,70 m


If you need more information, pleasefeel free to contact us.
Contact: Mr. Vino Zhang
Cell: +86-135 6063 2003 (Whatsapp and Wechat No.)
Email: vino@jncnhomes.com