Manors houses
LK&917
PLAN DESCRIPTION
FLOOR PLANS

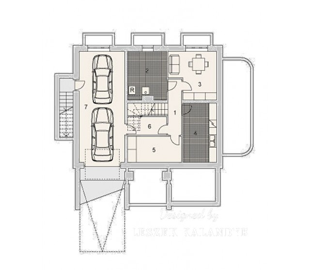
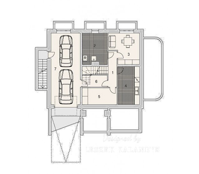
Basement


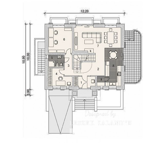
Ground floor


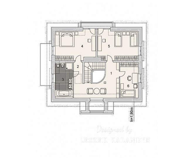
Attic


FULL SPECS & FEATURES
1. Usable area160,64 m²
2. Basement area90,87 m²
3. Total surface375,7 m²
4. Building area125,31 m²
5. Net volume678,69 m³
6. Gross volume1120,76 m³
7. Energy for heating14,27 kWh/m²*year
8. Building height9,95 m
9. Attic wall height0,89 m
10. Roof angle45/52/61/35 °
11. Roof area233 m²
12. Сeiling height2,88/2,77/2,63 m
13. Minimum plot size20,2 x 22,25 m


If you need more information, pleasefeel free to contact us.
Contact: Mr. Vino Zhang
Cell: +86-135 6063 2003 (Whatsapp and Wechat No.)
Email: vino@jncnhomes.com